Leilão Imóvel

Parceiro

Auket - Hub Imobiliário

Filtros

Localidade



Tipos de imóvel


Preço


Desconto (%)


Forma de Pagamento


Imóveis Caixa


Modalidade


Bancos


Data Leilão


Data de inclusão



Entre em contato conosco!

Em breve um de nossos representantes entrará em contato com você.

Forma de Contato Preferida*

Forma de pagamento*

*Campos obrigatórios, preencha-os para enviar a mensagem

Muito obrigado pelo contato!
Você receberá um email com mais informações para entrar em contato com o Leiloeiro

Deseja mesmo excluir esta anotação ?

Uma vez excluida, não é possivel recupera-la.

R$ 2.740.000,00

Galpão em Leilão em Blumenau / SC - 2477215

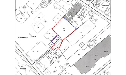
Rua Eng. Paul Werner, 900 (fundos), Itoupava Seca


Valor do Imóvel

R$ 2.740.000,00

40%
Mais sobre o imóvel

À vista

1° Praça:

09/10/2025 às 13:00

R$ 2.740.000,00

2ª Praça

16/10/2025 às 13:00

R$ 1.644.000,00

Galpão em Leilão em Blumenau / SC - 2477215

Rua Eng. Paul Werner, 900 (fundos), Itoupava Seca

Detalhes do Imóvel

Área Total:

Área Total 2.306,24 m²

Situação:

Situação Locado
Documentos

Verificar no site do Leiloeiro

Mais sobre o Imóvel
Leiloeiro: Mazzolli Leilões
Código Imóvel: 2477215
Data de Inclusão: 19/09/2025
Descrição: IMÓVEL : O terreno situado nesta cidade, nos fundos da Rua Eng. Paul Werner, contendo a área de 2.306,24 m2, fazendo frente em duas linhas, a primeira em 19 metros, em 6 metros na testa de uma rua projetada de 6 metros de largura que dá acesso ao lado par da Rua Eng. Paul Werner, e em 13 metros com terras da Sociedade Recreativa e Esportiva Ipiranga, e a segunda linha em 20,50 metros com terras da Sociedade Esportiva e Recreativa Ipiranga, fundos em 45,90 metros, sendo em 19,30 metros com terras de Sigfried Meyer e em 26,60 metros com terras de Alfonso Persuhn; estremando pelo lado direito em duas linhas, a primeira em 22,00 metros com terras de Sociedade Recreativa e Esportiva Ipiranga e a segunda em 41,65 metros com terras de Sociedade Recreativa e Esportiva Ipiranga e pelo lado esquerdo em 65,50 metros com terras de Grahl S/A Equipamentos Rodoviários e industriais edificado com um Galpão de alvenaria, coberto com estrutura metálica, cujo finalidade e escritório, o qual o n.900 da Rua Eng. Paul Werner - Fundos. 2/8.865: Pela escritura pública de compra e venda lavrada em 07 de julho de 1981, a firma GRAHL S/A EQUIPAMENTOS RODOVIÁRIOS E INDUSTRIAIS reservou para si e seus sucessores, o direito a uma servidão de caminho, a qual possui a seguinte descrição: contendo a área de 132 m2, fazendo frente em 6 metros na testa da rua projetada de 6 metros de largura a qual dá acesso ao lado par da Rua Eng. Paul Werner, fundos em 6 metros com terras de Grahl S/A Equipamentos Rodoviários e Industriais, estremando pelo lado direito em 22,00 metros com terras de Grahl S/A Equipamentos Rodoviários e Industriais, e pelo lado esquerdo em 22,00 metros com terras de Grahl S/A Equipamentos Rodoviários e Industriais, sem benfeitorias, distando pela frente 69,20 metros da esquina formada pelas ruas projetada e Eng. Paul Werner. OBS do Oficial de Justiça: Conforme dados do Cadastro Imobiliário da Prefeitura Municipal, o galpão industrial mencionado na matrícula tem área de 1913,28 m2, e está erguido ainda sobre o terreno um prédio comercial de área de 309,58 m2. Demais características constantes da matrícula n. 8.865, do 2º registro de imóveis de Blumenaú/SC. Inscrição Imobiliária: 4.1.11.0002.0030.001 - Nº cadastro: 71153 e Inscrição Imobiliária: 4.1.11.0002.0030.002 - Nº cadastro: 107790. Imóvel está localizado em área que tem rua asfaltada, ponto de ônibus e comércio local, Localização muito bom. Atualmente no local funciona o Blupadel uma arena poliesportiva e outros comércios, uma academia, um bar e um serralheria. Terreno tem uma construção de alvenaria cerca de 309,58 e uma cobertura de mais ou menos 1.830m², onde ficam as quadras poliesportivas. Atualmente o imóvel está locado para Mateus Pratti Ferreira - 47 99159-4996. Em relato do locatário, ele que investiu na cobertura das quadras e melhorou o imóvel de alvenaria que tinha no local. O imóvel não tem área de manobra e tem a parte do estacionamento reduzido, com isso torna um terreno com limitações. Em busca de informação, conversei com o corretor Enoc, ele me falou que conhece bem o imóvel que na enchente chegou a pegar agua, por ser mais baixo que a rua. Pagamento somente à vista, no dia da ARREMATAÇÃO Pagamento Dados do leilão Disponibilidade: Aberto 1º Leilão: 09/10/2025 16:00 Local: www.mazzollileiloes.com.br Datas dos Leilões 1º Leilão: 09/10/2025 16:00 Valor leilão: R$ 2.740.000,00 2º Leilão: 16/10/2025 16:00 Valor leilão: R$ 1.644.000,00 3º Leilão: 23/10/2025 16:00 Valor leilão: R$ 1.644.000,00 4º Leilão: 30/10/2025 16:00 Valor leilão: R$ 1.644.000,00 place Local do leilao place Local do bem Dados do Processo Vara da Justiça: 3ª Unidade de Apoio Em Execução Fiscal (PRCTB19) Magistrado: MARIZE CECÍLIA WINKLER Processo: 5002336-07.2010.4.04.7205/SC Tipo de processo: EXECUÇÃO FISCAL Exequente: UNIÃO - FAZENDA NACIONAL Executado: UNICAR UNIAO CATARINENSE DE VEICULOS LTDA Depositário: Cidade/UF: Blumenau/SC Endereço: Rua Eng. Paul Werner, 900 (fundos), Itoupava Seca - Visitação: Retirada

Imóveis em leilão nas cidades vizinhas de Blumenau/SC: