Leilão Imóvel

Parceiro

Auket - Hub Imobiliário

Filtros

Localidade



Tipos de imóvel


Preço


Desconto (%)


Forma de Pagamento


Imóveis Caixa


Modalidade


Bancos


Data Leilão


Data de inclusão



Entre em contato conosco!

Em breve um de nossos representantes entrará em contato com você.

Forma de Contato Preferida*

Forma de pagamento*

*Campos obrigatórios, preencha-os para enviar a mensagem

Muito obrigado pelo contato!
Você receberá um email com mais informações para entrar em contato com o Leiloeiro

Deseja mesmo excluir esta anotação ?

Uma vez excluida, não é possivel recupera-la.

R$ 1.537.287,04

Casas em Leilão em Santo André / SP - 2485996

RUA AGRA, N 121


Valor do Imóvel

R$ 1.537.287,04

40%
Mais sobre o imóvel

À vista

1° Praça:

25/09/2025 às 14:30

R$ 2.562.145,07

2ª Praça

14/10/2025 às 14:30

R$ 1.537.287,04

Casas em Leilão em Santo André / SP - 2485996

RUA AGRA, N 121

Detalhes do Imóvel

Área Total:

Área Total 550,00 m²

Situação:

Situação Ocupado
Documentos
Mais sobre o Imóvel
Tipo: Casa /Judicial
Leiloeiro: Pegoraro Leilões
Código Imóvel: 2485996
Data de Inclusão: 25/09/2025
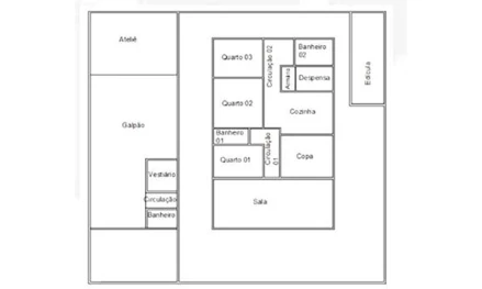
Descrição: LOTE ÚNICO : DO(S) BEM(NS): LOTE ÚNICO: 01 (UM) IMÓVEL LOCALIZADO NA RUA AGRA, Nº 121, VILA PIRES, SANTO ANDRÉ/SP, objeto da Matrícula nº 106.612, do 1º CRI de Santo André/SP conforme transcrição a seguir descrita: Imóvel: Prédio nº 121 na Rua Agra e seu terreno situado na Vila Pires com as seguintes medidas e confrontações: - 25,00 m de frente para a Rua Agra; do lado direito olhando para o terreno mede 22,00m confinando com o prédio nº 151 da Rua Agra e prédio nº 623 da Rua Natal, do lado esquerdo olhando para o terreno mede 22,00m confrontando com o prédio nº 117 da Rua Agra, e, nos fundos mede 25,00m confrontando com os prédios nºs 132 e 134 da Rua Américo Guazelli, encerrando a área de 550,00 m². Proprietários: Nabor Akamine, CPF nº 493.657.118-00 e sua mulher Elisa Sumiko Akamine, CPF nº 287.655.788-64. Registro Anterior: Transcrição nº 67.913. Ônus/Observações: Av. 01 Óbito - Para constar o falecimento de Nabor Akamine, já qualificado; R. 02 Partilha: Pelo formal de partilha mencionado na Av. 01, os bens deixados por Nabor Akamine, falecido em 29/04/2005, o imóvel objeto desta Matrícula foi, na partilha de bens, atribuído à meeira, Elisa Sumiko Akamine, já qualificada, na proporção de 50% do imóvel em razão de sua meação, e aos herdeiros filhos: 1- Meire Akamine Simmank, CPF nº 104.841.558-90 e cônjuge André Simmank, CPF nº. 223.008-678-26; 2 - Suzi Akamine, CPF nº 104.841.548-18; 3. André Nabor Akamine, executado e já qualificado, na proporção de 1/6 para cada um, nos termos da partilha homologada por sentença transitada em julgado em 26/02/2.008, valor venal 2008 de de R$ 172.234,11; Av. 04 Para constar PRENOTAÇÃO que, por requerimento de 05/10/2017, Maria José Fernandes, CPF nº 228.202.258-02 moveu ação de Despejo por Falta de Pagamento cumulada com Cobrança nº 1013478-26.2015.8.26.0554 em face de André Nabor Akamine-ME, CNPJ nº 03.902.066/0001-65, André Simmank, já qualificado, Meire Akamine Simmank, já qualificada, Suzi Akamine, já qualificada e André Nabor Akamine, já qualificado; Av. 05 - Para constar PENHORA extraída da Ação de Execução, processo nº 1013478-26.2015.8.26.0554 movida por Maria José Fernandes, CPF nº 228.202.258-02 contra Meire Akamine Simmank, Suzi Akamine, André Nabor Akamine e André Simmank, todos já qualificados, tendo o Executado André Nabor Akamine como depositário; Av. 06 Para constar PENHORA correspondente a 16,666% do imóvel objeto da presente matrícula extraída dos autos da Ação de Execução, processo nº 1007786-48.2016.8.26.0348 movida por Danubia Spaglari de Menezes (retificação Av. 08 Para constar que, em virtude da maioridade civil, passa a figurar como exequente Isadora Akamine), já qualificada, em face de André Nabor Akamine, já qualificado ; Av. 07 Para constar PENHORA exequenda correspondente a 16,666% do imóvel objeto da presente matrícula, sendo o Executado proprietário e depositário do bem; Av. 13 Para constar INDISPONIBILIDADE do bem, Processo nº 433 do Tribunal Regional do Trabalho da 2ª Região SP. Av. 18 Para constar a retificação da averbação nº. 07 da presente matrícula, para o fim de ficar constando que a PENHORA exequenda recaiu sobre a totalidade (100%) do imóvel; Av. 19 Para constar o cancelamento da penhora averbada sob o nº. 06. Classificação Fiscal: nº 09.203.002. Observações constantes do Laudo de Avaliação Homologado: a) Relata o avaliador que o imóvel está situado numa Zona de Qualificação Urbana, região a qual é servida pelos principais melhoramentos urbanos, tais como: guias, sarjetas, pavimentação, rede dágua, rede de coleta de esgoto, rede telefônica, rede de energia elétrica, iluminação pública, coleta de lixo, transporte coletivo, TV a cabo, entre outros. Esclarece que o bairro é misto, ou seja, além de residencial, possui uma grande gama de comércio como: padaria, restaurantes diversos, posto de gasolina, indústria e etc.; b) O imóvel encontra-se próximo ao Centro da Cidade (aproximadamente 3,0 Km), próximo à Estação de trem Prefeito Celso Daniel (aproximadamente 3,7 Km), ao Shopping Atrium (aproximadamente 3,2 Km) e próximo ao Clube Aramaçã (aproximadamente 650 m). Relata também que o solo se apresenta aparentemente seco e firme e que, conforme informações dos moradores da região, este local não sofre alagamentos e possui um índice de violência moderado; c) Constatou que o imóvel foi construído utilizando-se vigas e pilares de concreto armado e, no momento da vistoria, observou que no andar térreo havia reforma em alguns cômodos e uma obra de ampliação, em que estava sendo construído um andar superior. Salienta que o imóvel possui um padrão de construção normal, composto por: Sala; 5 (cinco) quartos; copa, 4 (quatro) banheiros (sendo um deles na edícula), circulação, Cozinha, Edícula, Área externa, Galpão composto por ateliê, vestiário e banheiro; Garagem com portão automático em madeira e aço; d) Dentre as patologias encontradas destaca que grande parte delas são originárias da própria reforma que estava acontecendo no momento da perícia, como por exemplo, falta de piso, pintura recortes, alvenaria sem o devido acabamento e etc. Por outro lado, esclarece que as patologias sem relação com a obra são alguns deslocamentos de tintas na alvenaria e algumas sujidades . OBSERVAÇÕES: 1) O imóvel pode estar ocupado de coisas e pessoas, sendo a desocupação por conta do arrematante; 2) Venda ad corpus e no estado em que se encontra, sem garantia, constituindo ônus do interessado verificar suas condições, antes das datas designadas para as alienações judiciais eletrônicas . Avaliação de R$ R$ 1.890.000,00 (um milhão e oitocentos e noventa mil reais), outubro/2020. AVALIAÇÃO ATUALIZADA R$ 2.562.145,07 (dois milhões, quinhentos e sessenta e dois mil, cento e quarenta e cinco reais e sete centavos), agosto/2025, pela Tabela Pratica do TJ/SP para débitos judiciais comuns. - DÉBITO DA DEMANDA PROCESSUAL: 402.473,95 (quatrocentos e dois mil, quatrocentos e setenta e três reais e noventa e cinco centavos), abril/2025